From the Autodesk App Store:
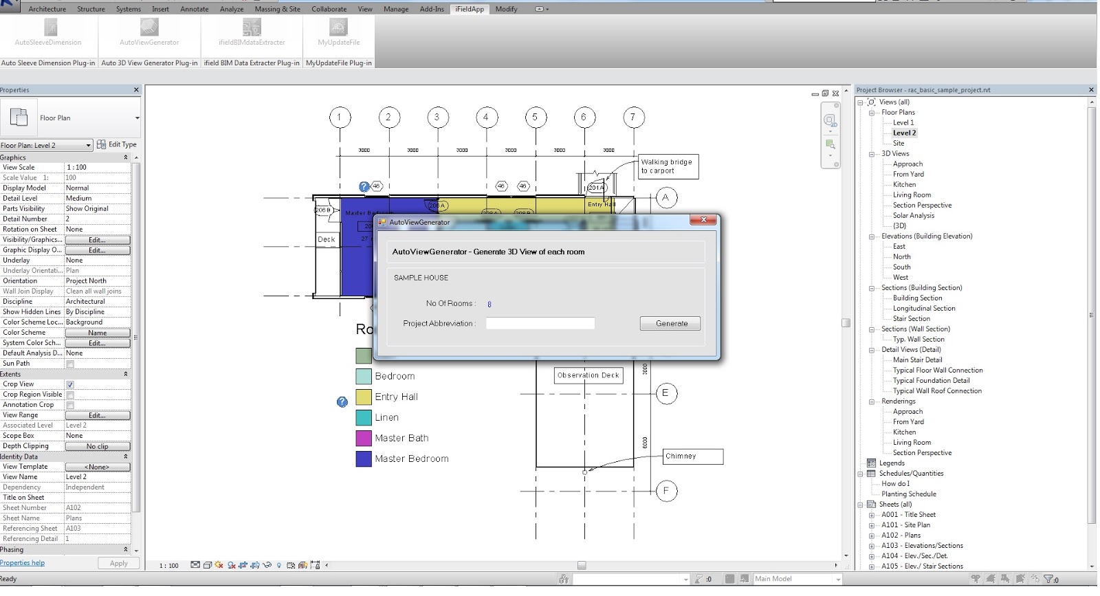
AutoViewGenerator discovers all available roomtags and generates 3D View for each room from the current view (floor). The user need to provide one input ‘Project Abbreviation’ in order to generate desired 3D View of each room.
[youtube https://www.youtube.com/watch?v=oEB8aXz6x4k]
To use this plugin, you must have to login to Autodesk account to use this plugin .
You can find the Plugin in Autodesk® Revit® “iFieldApp-> AutoViewGenerator (AVG)”
Read more





